2022-01-18

Formadoras y precintadoras de cajas plegables para Europa del Este

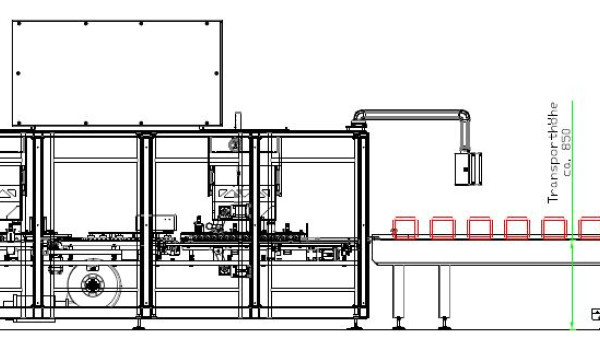
Un gran procesador de pescado de Europa del Este recibe de nosotros una formadora y precintadora de 1 cabezal.

Como el proceso de producción es manual en este momento, la capacidad de producción se incrementará significativamente con nuestro equipo de envasado.

AGRADECEMOS LA CONFIANZA
Las plantas de envasado forman parte de nuestra competencia principal. ¿Le interesa? - Póngase en contacto con nosotros, ¡estaremos encantados de asesorarle!

Esperamos su contacto
+49 (0) 6732 / 91603-0